my home renovation
2019.05.20
スタッフ

私事ですが、、、
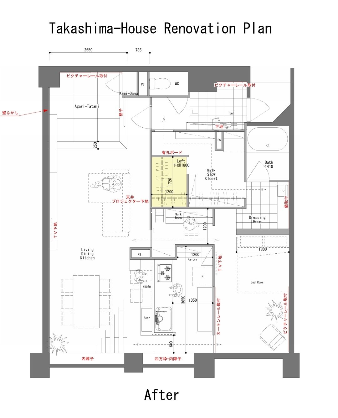
中古買ってリノベーション!
マイホームの工事に入りました。
3LDKのマンションをスケルトンにして、
1LDK+WICに。
将来どうするの?
とかよく聞かれますが、
どうなるか分からない将来のことは置いといて
今一番住みたい家にしちゃいます。笑
仕切りの少ない、オープンな家がタイプです。
旦那さんの意見は聞かず
(ビールサーバーだけはしつこく言われ続けたのでしゃーなしですが)
好き勝手するつもりです。
連休明けに着工して、
今はスケルトンになった状態。

スケルトンになって初めて、
あーこんなところから配線してたのね〜
とか、
いや、こんなとこにガス管あったら計画通りの寸法取れへんやん!
とか、
わかることがいっぱい。
勉強になります。
数々の制限の中で
最大のパフォーマンス
わくわくしますね!!
タイルもフローリングも照明も
自分の家となるとなかなか決まりません。。。
大工工事が始まれば、
ちょくちょくレポートしていきますね★
完成予想図はこちら






