- ホーム
- 施工事例
土間付きダイニングで広がる暮らし
もともと実家をリノベーションして2世帯で住むことを検討していたO様。タイミングよく隣の物件が売りに出たため、実家と併せてリノベーションをすることに。
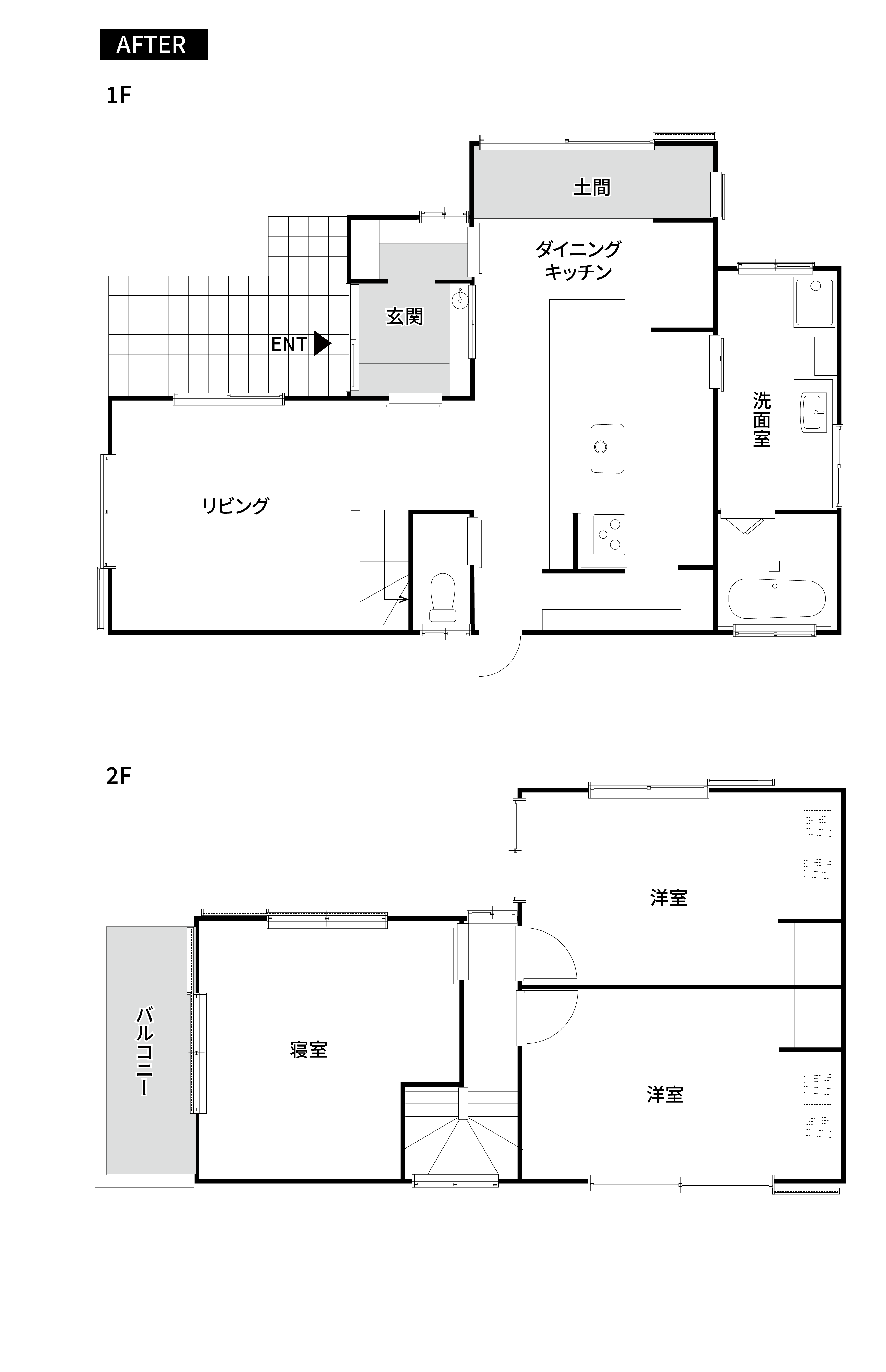
購入された物件は、玄関ホールを中心に空間が分断されたL字型住宅。
無駄な壁を取り払い、階段とトイレの位置を入れ替えたことで、玄関ホールを挟んでも一体感のある開放的なLDKを実現しました。和室と繋げた空間には、ダイニングテーブルと一体化したアイランドキッチンを設け、みんなが集まる中心となっています。
さらに、和室に面した縁側は土間に。玄関以外の外動線が加わり、駐車場へのアクセスが便利になりました。植物の世話や犬のブラッシングなど、土間ならではの過ごし方も増え、生活がより快適で豊かに。
BEFORE
AFTER
プランナーからのひとこと

プランナーからのひとこと
親御様と息子様ご夫婦で相談会にお越しになり、親子でリノベーションをされたいと伺った際は驚きましたが、和気あいあいと仲睦まじいご様子が本当に素敵で、ぜひお力添えをしたいと思いました。今回、隣接する2つの物件の施工という特殊なケースでしたが、新しい2世帯住宅のカタチが出来上がったのではないかと思います。

























