- ホーム
- 施工事例
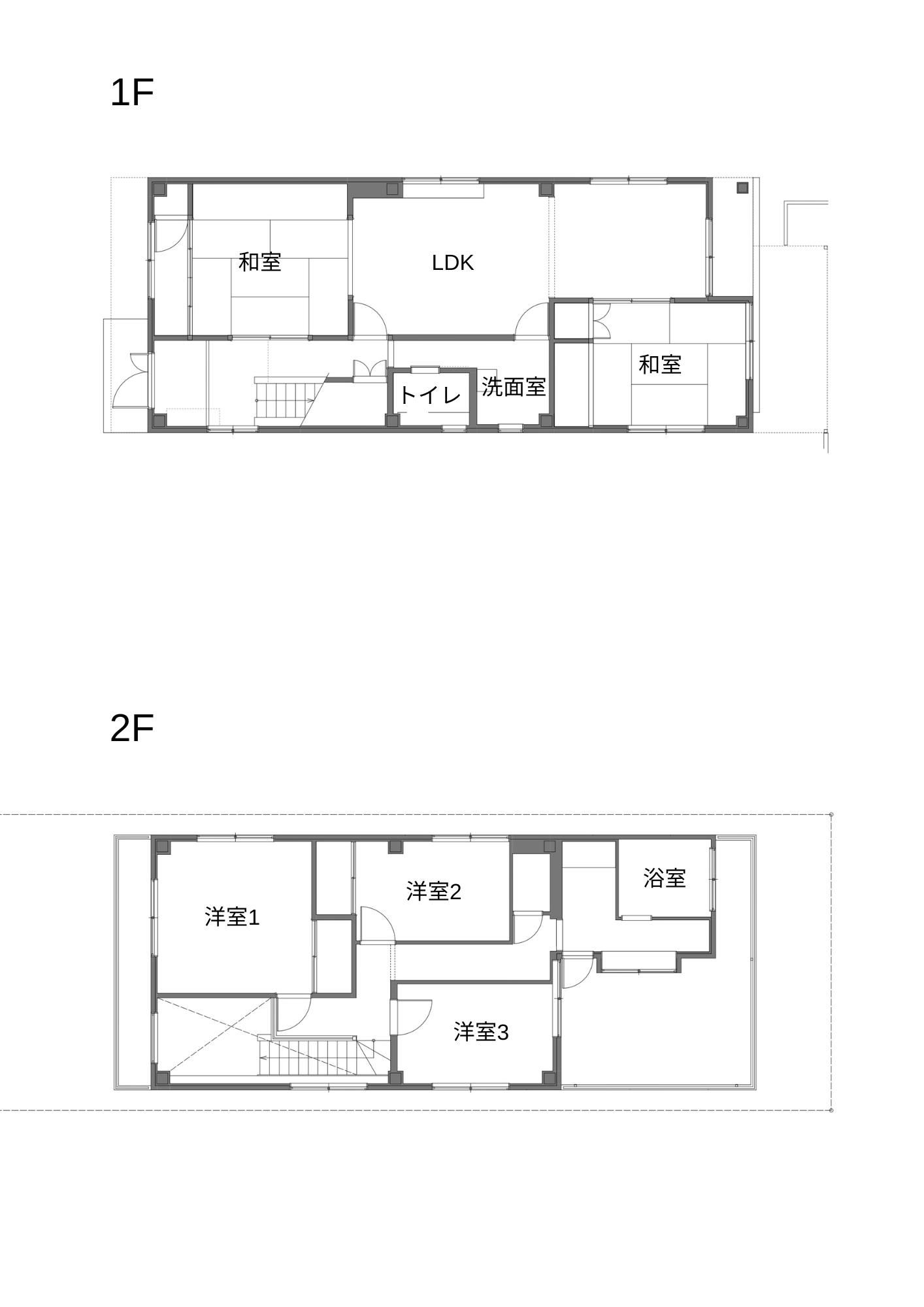
「断熱性向上」と「回遊動線」を叶えた家
新しい家に住みたいけれど、子どもの校区は変えたくない。
でも希望するエリアに思い通りの土地が無い。
家探しをしている方なら多くの方がぶつかるこの問題を「中古一戸建てを購入してリノベーションする」という選択肢で希望通りのエリアで快適な住まいを手に入れたN様。
しかし、当初その選択をした際には「鉄骨造をリノベーションしてくれる会社が少ない」、「鉄骨造は断熱性が低く寒い」などそれはそれで数々の問題が…。
そんな問題を乗り越えて「後悔は全くない」ときっぱりと言い切るN様の家づくりは、緻密な計画と担当プランナーを信頼してくださった関係性から生まれたものでした。
「自分自身で調べるのも大事だけど、ある程度はプロに任せることも大事」と全幅の信頼を寄せて下さったことで、中古物件リノベーションであるにも関わらず、断熱性が高く、回遊動線が取れて使い勝手の良い、唯一の家が完成しました。
BEFORE
AFTER
プランナーからのひとこと

プランナーからのひとこと
意匠面だけでなく、断熱性能や設備機器など細部までしっかりこだわりをお持ちで、私も改めて確認と勉強しながらお打ち合わせさせていただきました。
回遊動線にこだわった間取り計画は、ずぶ濡れになった日も、荷物がたくさんある日も、どんな日も対応できるプランになっていると思います。
坪庭に植えられたルッコラの行く末と、シンボルツリーのオリーブの成長が楽しみです。


























