- ホーム
- 施工事例
徒歩0分のカフェ暮らし
▼リノベーションのきっかけ
ご主人が外構関係のお仕事をされていることもあり、庭のある戸建てでお探しだったA様。新築も検討されていましたが、空き土地よりも中古物件の方が希望エリア内での選択肢がより多く、予算内にも収まるため、この度リノベーションを選択されました。
▼お施主様のご要望
カッコよすぎず、ナチュラルな雰囲気をご希望。休日はよくお2人でカフェに出かけることが多いそうで、カフェのような雰囲気で、木の温もりを感じられるお家にしたいとのご要望でした。
▼テーマ
・本物のカフェの雰囲気、心地よさ、動線を意識したプラン
・木素材を程よく使用し、ナチュラルかつ温かみのある空間づくり
▼ポイント①「カフェ要素を住宅に落とし込む」
今回は、元の間取りがA様のご要望に近かったため、大きな変更は行っていません。しかしキッチンは、垂れ壁で空間が分断され、殺風景な見た目でした。
まずはカフェの雰囲気に近づけるために、キッチン正面の壁は全面タイル張りに変更。
シンクの上にはコーヒー好きなA様が、コーヒー用品を飾って収納できるオープンの棚を造作しました。
キッチンカウンターは元のサイズより奥行きをとり、モルタル調のクロスに木天板を使用することでお店の様な雰囲気に仕上がっています。
玄関からリビングに入るとまず正面にこの景色が広がるので、毎日カフェにいるような感覚を楽しむことができます。
そして、リビングダイニングの天井は素材感の残る「ラフサーモパイン」を採用。風雨にさらされたような質感と、日に焼けたような色で、この上ない雰囲気と温かみを醸し出しており、これもまた非日常を感じさせるポイントの1つとなっています。
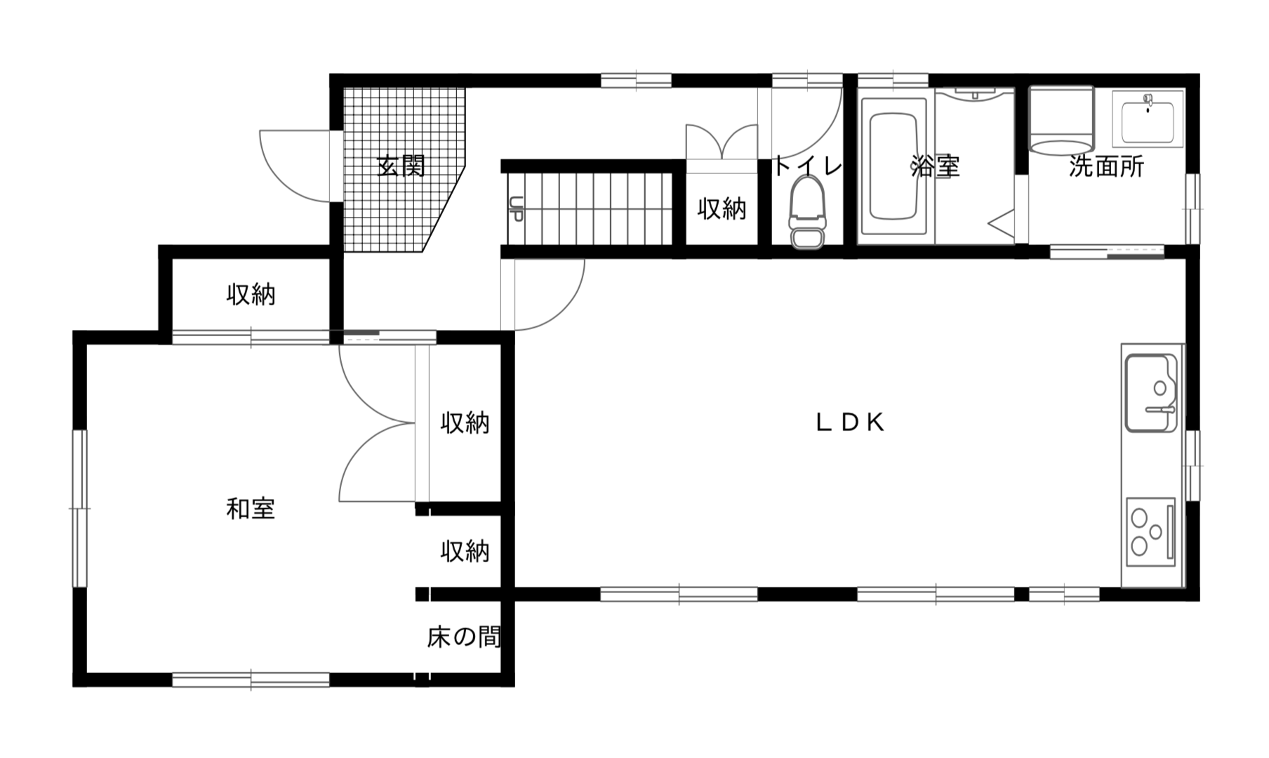
▼ポイント②「生活を快適にする動線計画」
生活動線を快適にするために間取りを変えたポイントが2つあります。
まず1つ目は、トイレの位置。洗面所を広く使いたいと言うA様のご要望から、位置を階段横に変更。その結果、横幅が90cmほど広がり、2人で並んでも十分使える広さになりました。
2つ目は、玄関ホールスペース。和室の押し入れを潰し、和室のサイズ自体も少し小さくしたことで、玄関すぐ横にウォークインクローゼットを設けることができました。外出や帰宅時に洋服等の出し入れがスムーズに行える様に動線が確保されています。
BEFORE
AFTER
プランナーからのひとこと

プランナーからのひとこと
植物が好きなご夫婦で、あの植物をここに置いたらどうかなとお話されていたのが印象的です。
タイルやクロスには植物との相性がいいブルーを採用し、
カウンターはナラ材を使い統一感を持たせました。
植物が映える落ち着いたおうちになったと思います!
季節による変化も楽しみです。























